назад

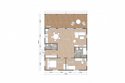
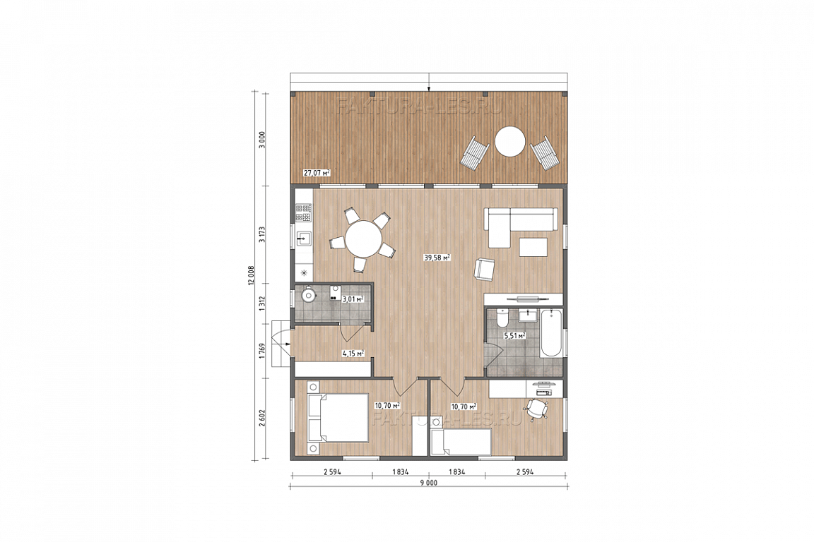
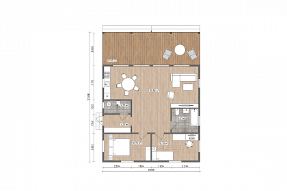
Проект каркасного дома Сканди-10

12 × 9 м
100.8 м²
1 этаж
25 дней срок строительства дома
5 137 320 Р
5 137 320 Р
50 965 Р/м²

В данный проект можно внести изменения как в планировку, так и в конструкциии комплектацию в соответствии с вашими пожеланиями.

Хочу изменить планировку
Выберите комплектацию
Внешняя отделка
Внутренняя отделка
Утепление стен
Фундамент
  • Винтовые металлические сваи. Длина 2.5 м. Диаметр — 108 мм. (заглубление 2 м., цоколь 50 см.).
  • Заливка пескобетона М-300 внутрь сваи.
  • Монтаж оголовка на сварку.
  • Обвязка свай — обрезной брус 200×200 мм., 1 сорт ГОСТ 8486.
  • Железобетонные сваи сечением 150×150 мм.
  • Длина 3 м. Бетон М-300 (B22,5 F150 W4).
  • Заглубление 2.5 м., цоколь 50 см. Забивка свай на специальной установке.
  • Буронабивные сваи на глубину промерзания 1.8 м.
  • Диаметр — 0.25 м. Ростверк (ж/б лента) 350×500 мм. Цоколь 50 см.
  • Состав: бетон марки М300 (Б22,5) сертифицированный; арматура 12 мм. Заливка с виброусадкой.
  • Монолитный ленточный железобетонный, сечением 350×800 мм.
  • Заглубление ленты 70 см. (50 см. ж/б лента и 20 см. песчаная подсыпка), цоколь 50 см.
  • Бетон марки М300 (Б22,5) сертифицированный; арматура 12 мм.
  • Заливка с виброусадкой.
Окна ПВХ

Окна ПВХ (VEKA Softline 5-и камерный профиль, 70 мм., 2-x стеклопакет, 3 стекла).

Утепление перекрытий
Подшивка крыши
Кровельное покрытие
Водосточная система
Стены

Каркас заводского изготовления из калиброванной доски 44×144 мм. камерной сушки 12-14%, (костромская ель, сосна). Обработка огнебиозащитой машинным способом. Утепление стен минеральным утеплителем КНАУФ 150 мм.

Отделка фасадов имитация бруса 20×135 мм. сорт АБ.

Отделка фасадов плиткой Хауберк "Имитация кирпича".

Фундамент
  • Винтовые металлические сваи. Длина 2.5 м. Диаметр — 108 мм. (заглубление 2 м., цоколь 50 см.).
  • Заливка пескобетона М-300 внутрь сваи.
  • Монтаж оголовка на сварку.
  • Обвязка свай — обрезной брус 200×200 мм., 1 сорт ГОСТ 8486.
  • Железобетонные сваи сечением 150×150 мм.
  • Длина 3 м. Бетон М-300 (B22,5 F150 W4).
  • Заглубление 2.5 м., цоколь 50 см. Забивка свай на специальной установке.
  • Монолитный ленточный железобетонный, сечением 350×800 мм.
  • Заглубление ленты 70 см. (50 см. ж/б лента и 20 см. песчаная подсыпка), цоколь 50 см.
  • Бетон марки М300 (Б22,5) сертифицированный; арматура 12 мм.
  • Заливка с виброусадкой.
Крыша
  • Стропильная система выполнена из доски 45×145 мм. с шагом 600 мм. (камерной сушки).
  • Обрешетка из доски 22×145 мм. с шагом 350 мм.
  • Утепление кровли минеральной ватой "Кнауф" 150 мм.
  • Кровельное покрытие — металлочерепица Grandline, 0.45 мм., покрытие полиэстер, цвет на выбор.битумная черепица "Шинглас Фазенда, Аккорд", цвет на выбор.
  • Устройство водосточной системы Döcke, Grandline.
Перекрытия
  • Балки перекрытия из доски камерной сушки 44×194 мм. с шагом 600 мм., обработка огнебиозащитой машинным способом.
  • Черновой пол из доски камерной сушки 22×140 мм., обработка биозащитой машинным способом.
  • Утепление полов минеральной ватой "Кнауф" 150 мм.200 мм.
  • Чистовые полы выполнены из шпунтованной доски камерной сушки 35×135 мм. сорт АБ, на верандах и балконах - палубная доска 35×144 мм.
  • Отделка потолка имитация бруса 20×135 мм. сорт АБ.
Окна, двери
  • ПВХ белые Эконом, 3-x камерный профиль, однокамерный стеклопакет;

    Окна ПВХ (VEKA Softline 5-и камерный профиль, 70 мм., 2-x стеклопакет, 3 стекла).

    Окна ПВХ ламинация под дерево (VEKA Softline 5-и камерный профиль, 70 мм., 2-x стеклопакет, 3 стекла).

  • Межкомнатные деревянные двери — двери из массива сосны, филенчатые.
  • Дверь входная металлическая, зимний вариант (металл 1.5 мм., 2-й прихлоп, 2 замка, утепление, терморазрыв, мдф-антик).
Прочие работы

Все работы производятся опытными Костромскими плотниками совместно с прорабом.

  • Все монтажные работы по выбранной комплектации.
  • Организация проживания рабочих (бытовка).
  • Монтаж строительных лесов.
  • Все расходные материалы: метизы, пластины, монтажная пена.
  • Разгрузка комплекта и строительных материалов.
  • Доставка до 50 км. от МКАД.