назад

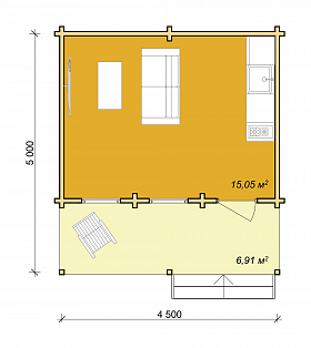
Проект дома из двойного бруса Лахти

5.3 × 4.8 м
22 м²
1 этаж
20 дней срок строительства дома
1 208 422 Р
1 208 422 Р
54 928 Р/м²

Проект дома из бруса «Лахти» 5.3х4.8 м площадью 22 м2

В данный проект можно внести изменения как в планировку, так и в конструкциии комплектацию в соответствии с вашими пожеланиями.

Хочу изменить планировку
Комплектация (под ключ)
Геологические исследования грунта
Геологические исследования грунта
Полная проектная документация
Полная проектная документация
В комплектацию входит выбранный тип фундамента
Выбранный тип фундамента
Вы получаете стеновой комплект
Стеновой комплект
Возведем и покроем кровлю
Кровля и выбранное покрытие
Окна двери
Окна двери
Отделка деревом
Отделка деревом
Утепление перекрытий
Утепление перекрытий

Стены
Двойной брус
+31 000 Р
+126 999 Р
+157 999 Р
  • Стены по технологии двойной брус с заполнением внутреннего пространства утеплителем эковата 100 мм.150 мм. 100 мм.150 мм.100 мм.150 мм.
  • Брус 45×145 мм. камерной сушки 12-14%,(костромская ель, сосна), толщина стены 190 мм.Брус 45×145 мм. камерной сушки 12-14%,(костромская ель, сосна), толщина стены 240 мм.Брус 65×145 мм. камерной сушки 12-14%,(костромская ель, сосна), толщина стены 230 мм.Брус 65×145 мм. камерной сушки 12-14%,(костромская ель, сосна), толщина стены 280 мм.Брус 45×145 мм. камерной сушки 12-14%, (костромская ель, сосна), толщина стены 190 мм.Брус 45×145 мм. камерной сушки 12-14%, (костромская ель, сосна), толщина стены 240 мм.
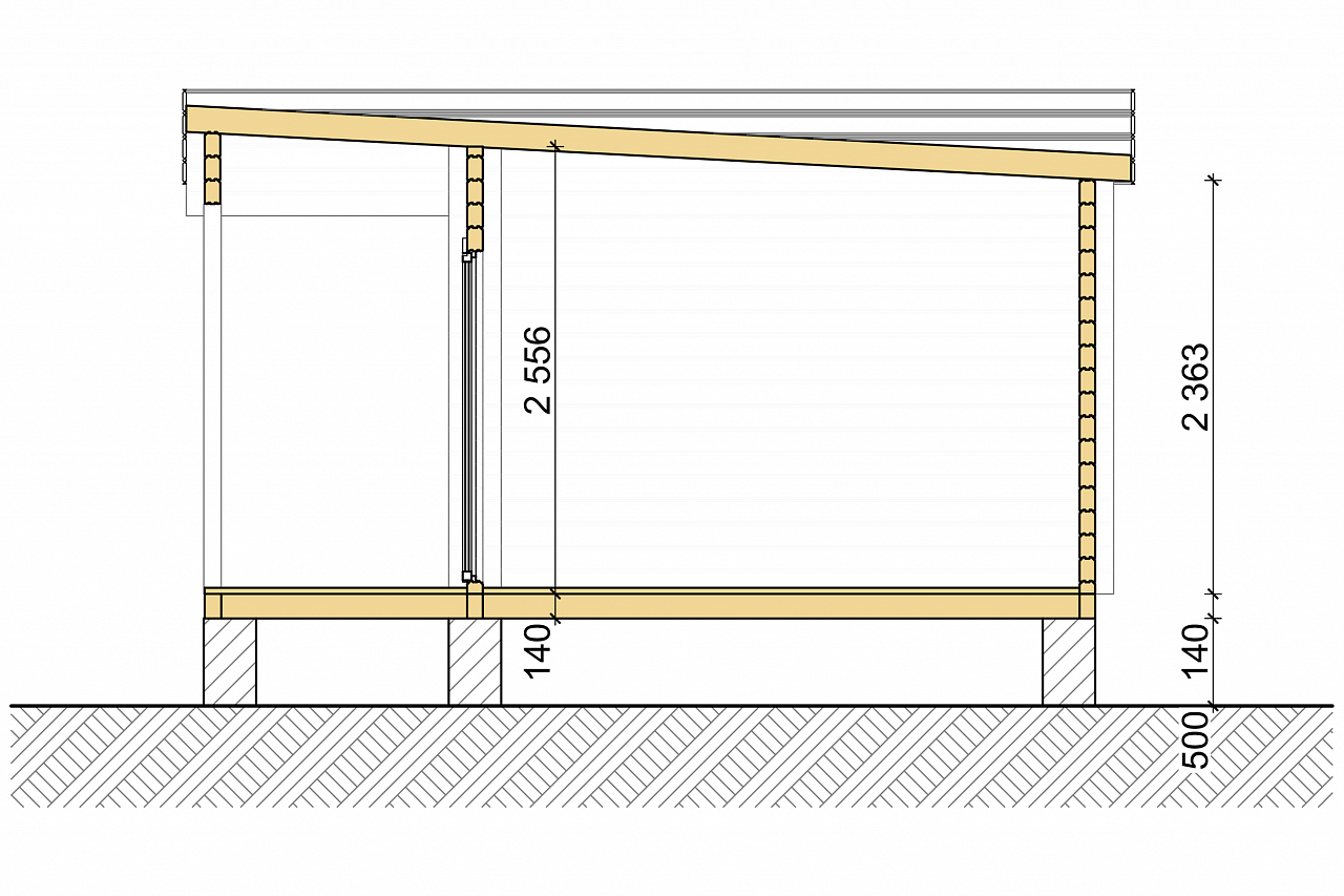
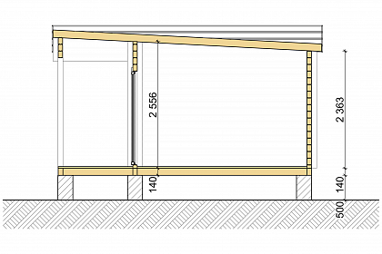
  • Балки перекрытия из доски камерной сушки 45 × 195 мм. с шагом 600 мм.
  • Черновой пол из доски камерной сушки 22×140 мм.
  • Утепление полов минеральной ватой «Кнауф» 150 мм.
  • Чистовые полы выполнены из шпунтованной доски камерной сушки 35×135 мм сорт АБ.
  • Отделка потолка имитация бруса 20×135 мм. сорт АБ.

В данный проект можно внести изменения как в конструкции так и в комплектацию.

Фундамент
+12 600 Р
+149 425 Р
+181 225 Р
  • Винтовые металлические сваи. Длина 2.5 м. Диаметр — 108 мм.
  • Заглубление сваи 2 м, цоколь 50 см.
  • Заливка пескобетона внутрь сваи.
  • Приварка оголовка сваи.
  • Обвязка свай - обрезной брус 200×200 мм., 1 сорт ГОСТ 8486.

Будет возведен монолитный ленточный железобетонный фундамент, сечением 350 × 800 мм.

  • Монолитная ж/б лента сечением 350 × 800 мм.
  • Заглубление ленты 70 см (50 см ж/б лента и 20 см песчаная подсыпка), цоколь 50 см.
  • Бетон марки М300 (Б22,5) сертифицированный; арматура 12 мм.
  • Заливка с виброусадкой.

Будет возведен свайный ж/б фундамент.

  • Железобетонные сваи сечением 150 × 150 мм.
  • Длина 3м. Бетон М-300 (B22,5 F150 W4). Заглубление 2.5 м. цоколь 50 см.
  • Забивка свай на специальной установке.

Будет возведен свайно-ленточный железобетонный фундамент.

  • Буронабивные сваи на глубину промерзания 1.8 м. Диаметр — 0.25 м.
  • Ростверк (ж/б лента) 350 × 500 мм. Цоколь 500 мм.
  • Бетон марки М300 (Б22.5) сертифицированный; арматура 12 мм.
  • Заливка с виброусадкой.
Крыша
Покрытие
+ 26 000 Р
Водосточная система
+ 25 200 Р
+ 25 200 Р
  • Стропильная система выполнена из доски 45×145 мм с шагом 600 мм (камерной сушки).
  • Обрешетка из доски 22×145 мм с шагом 350 мм.
  • Утепление кровли минеральной ватой «Кнауф» 150 мм.
  • Кровельное покрытие — металлочерепица Grandline 0.45 мм., покрытие полиэстер, цвет на выбор.битумная черепица "Шинглас Фазенда, Аккорд".
  • Устройство водосточной системы Döcke, Grandline.
Окна
+78 240 Р
  • Окна ПВХ (профиль 70 мм., двухкамерный стеклопакет, 3 стекла).
  • Деревянные Евроокна (клееный брус 70 мм, стеклопакет 2х-камерный).
  • Межкомнатные деревянные двери — двери из массива сосны, филенчатые.
  • Дверь входная металлическая, зимний вариант (металл 1.5 мм., 2-й прихлоп, 2 замка, утепление, терморазрыв, мдф-антик).
Прочие работы

Все работы производятся опытными Костромскими плотниками совместно с прорабом.

  • Разгрузка комплекта и строительных материалов.
  • Монтаж строительных лесов.
  • Все монтажные работы по выбранной комплектации.
  • Все расходные материалы: метизы, пластины, монтажная пена.
  • Доставка не включена в стоимость, рассчитывается индивидуально.
Похожие проекты