ДСВ 4x4,5

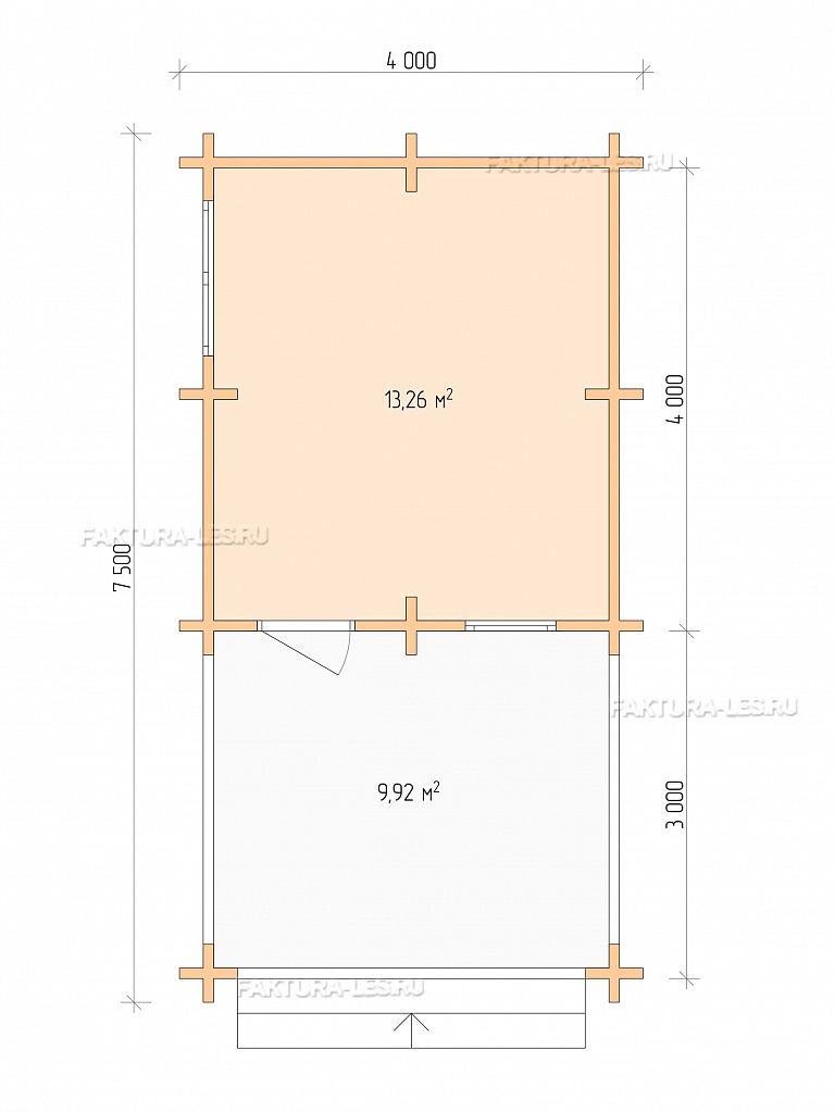
7.5 × 4 м
23.2 м²
1 этаж
20 дней срок строительства дома
502 578 Р
502 578 Р
21 663 Р/м²

В данный проект можно внести изменения как в планировку, так и в конструкциии комплектацию в соответствии с вашими пожеланиями.

Хочу изменить планировку
Комплектация (под усадку)
Геологические исследования грунта
Геологические исследования грунта
Полная проектная документация
Полная проектная документация
В комплектацию входит выбранный тип фундамента
Выбранный тип фундамента
Вы получаете стеновой комплект
Стеновой комплект
Возведем и покроем кровлю
Кровля и выбранное покрытие

В цену включены все расходные материалы: оцинкованные метизы, межвенцовый 100% джутовый утеплитель 12мм, березовые нагеля, антисептик.

Стены
Сухой профилированный брус
-81 130 Р
+94 140 Р
+191 820 Р
Двойной профилированный брус
+71 360 Р
Фундамент
+42 240 Р
Крыша
Покрытие
+ 3 490 Р
Утепление кровли
+ 5 840 Р
Подшивка крыши
+ 3 240 Р
Водосточная система
+ 28 520 Р
Прочие работы

Все работы производятся опытными Костромскими плотниками совместно с прорабом.

  • Организация проживания рабочих.
  • Разгрузка комплекта и строительных материалов.
  • Все монтажные работы по выбранной комплектации.
  • Все расходные материалы: оцинкованные метизы, межвенцовый 100% джутовый утеплитель 12 мм, березовые нагеля, антисептик.
  • Доставка не включена в стоимость, рассчитывается индивидуально.

Обращаем Ваше внимание, что в данную комплектацию не входят отделочные работы и материалы, работы по устройству коммуникаций, окна, двери, лестница, каркасные перегородки (изображены на планах белым цветом). Все эти работы производятся после усадки капитальных стен, через 8-12 месяцев после монтажа сруба.