Проекты
Акции и скидки
Дома из бревна
Дома из бруса
Из клееного бруса
Из двойного бруса
Каркасные дома
Бани
Дома на заказ
Все проекты
Строительство
Под ключ
Материалы
Лесозаготовка
Проектирование
Изготовление сруба
Фундамент
Сборка дома
Кровля
Коммуникации
Отделка
Стоимость
Покупателю
Цены
Порядок оплаты
Кредит
Доставка
Вопрос-ответ
О компании
Компания
Производство
Плотники
Отзывы
Фотогалерея
Новости
Статьи
Контактная информация
+7 (495) 722-74-50
Главная
О компании
Фотогалерея
Фотоотчеты
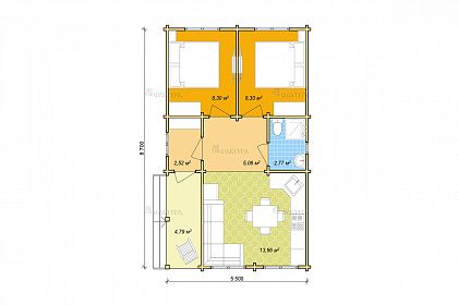
Дом из бруса «Боден» — Московская обл., Дмитровский р-н, д.Исаково
Дом из бруса «Боден» — Московская обл., Дмитровский р-н, д.Исаково
5.8 × 9.0 м
47 м²
1 этаж
Подробнее о проекте
Этапы строительства
Фундамент
Сборка дома
Кровля
Отделка
Фундамент
Сборка дома
Кровля
Отделка
Отзыв клиента
23.12.2023 г.
Комплектация «Под ключ»
Геологические исследования грунта;
Полная проектная документация;
Выбранный тип фундамента;
Стеновой комплект;
Кровля и выбранное покрытие;
Окна, двери;
Полы, потолки.
Комплектация «Под усадку»
Геологические исследования грунта;
Полная проектная документация;
Выбранный тип фундамента;
Стеновой комплект;
Кровля и выбранное покрытие.